Espace propriétaire
fr
Carcès (83570)

3 pièces - 62,55 m²

Appartement 3 pièces neuf avec terrasse à Carcès

270 000 €
Ref : DVAP10000056
A propos de ce bien

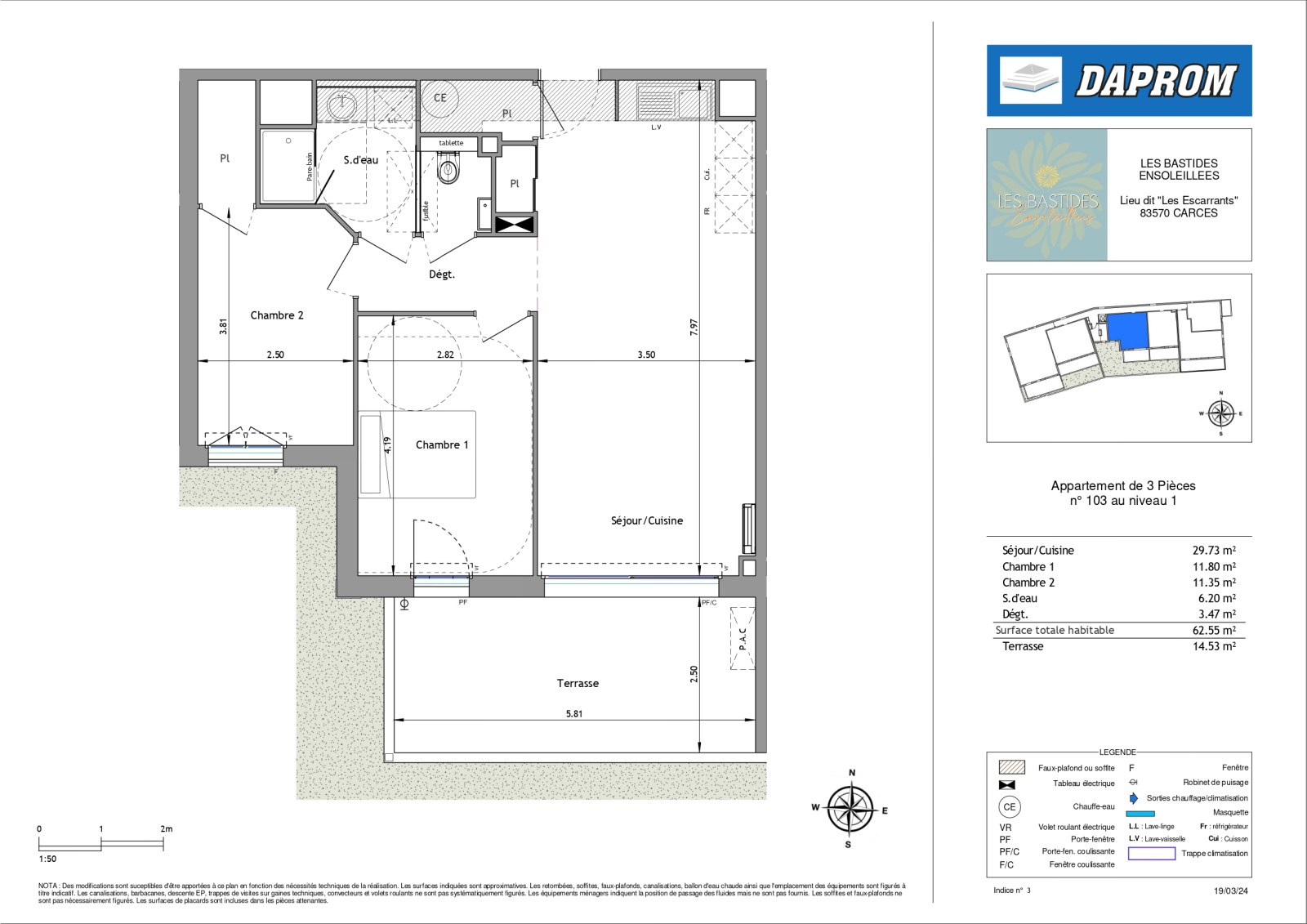
Découvrez ce superbe appartement neuf de trois pièces situé dans la résidence Les Bastide ensoleillée, au lieu-dit Les Escarres à Carcès (83570). Ce bien, portant le numéro 103 au premier niveau, offre une surface habitable de 62,55 m² comprenant un séjour cuisine lumineux de 29,73 m², deux chambres spacieuses (11,80 m² et 11,35 m²), une salle d'eau de 6,20 m² et un dégagement de 3,47 m². Profitez d'une belle terrasse de 14,53 m² pour vos moments de détente ainsi que d'un emplacement de parking privatif de 14,23 m². Idéalement situé dans un programme neuf, cet appartement allie confort moderne et cadre agréable, parfait pour une résidence principale ou un investissement locatif.

Descriptif de ce bien
Général
Code postal 83570
Surface loi Carrez (m²) 62,55 m²
Nombre de chambre(s) 2
Nombre de pièces 3
Etage 1
Ascenseur OUI
Détails
Nb de salle d'eau 1
Cuisine Américaine
Mode de chauffage Pompe à chaleur
Type de chauffage TRAD_TYPE_CHAUFF_AIR_EAU
Format de chauffage Individuel
Visiophone OUI
Balcon NON
Loggia NON
Terrasse OUI
Cave NON
Exposition Sud
Année de construction 2026
Composition
Rez de chaussée
Séjour / Cuisine 29.73 m²

chambre 11.80 m²

chambre 11.35 m²

Salle d'eau 6.20 m²

Dégagement 3.47 m²

WC

terrasse 14.53 m²

Financier
Prix de vente 270 000 €
Les honoraires d'agence seront intégralement à la charge du vendeur  
Energie
DPE GES
Copropriété
Copropriété OUI
Lot n° 103
nombre de lots 11
Contacter pour ce bien
L'agence
Téléphone 06 71 32 98 13
Adresse
25 grand Rue 83860 Nans-les-Pins

* Champ obligatoire

Les informations recueillies sur ce formulaire sont enregistrées dans un fichier informatisé par La Boite Immo agissant comme Sous-traitant du traitement pour la gestion de la clientèle/prospects de l'Agence / du Réseau qui reste Responsable du Traitement de vos Données personnelles. La base légale du traitement repose sur l'intérêt légitime de l'Agence / du Réseau. Elles sont conservées jusqu'à demande de suppression et sont destinées à l'Agence / au Réseau. Conformément à la loi « informatique et libertés », vous disposez des droits d’accès, de rectification, d’effacement, d’opposition, de limitation et de portabilité de vos données. Vous pouvez retirer votre consentement à tout moment en contactant directement l’Agence / Le Réseau. Consultez le site https://cnil.fr/fr pour plus d’informations sur vos droits. Si vous estimez, après avoir contacté l'Agence / le Réseau, que vos droits « Informatique et Libertés » ne sont pas respectés, vous pouvez adresser une réclamation à la CNIL. Nous vous informons de l’existence de la liste d'opposition au démarchage téléphonique « Bloctel », sur laquelle vous pouvez vous inscrire ici : https://www.bloctel.gouv.fr Dans le cadre de la protection des Données personnelles, nous vous invitons à ne pas inscrire de Données sensibles dans le champ de saisie libre.
Ce site est protégé par reCAPTCHA, les Politiques de Confidentialité et les Conditions d'Utilisation de Google s'appliquent.

Découvrir nos outils