Espace propriétaire
fr
Carcès (83570)

2 pièces - 47,91 m²

Appartement neuf 2 pièces avec terrasse à Carcès

233 000 €
Ref : DVAP10000057
A propos de ce bien

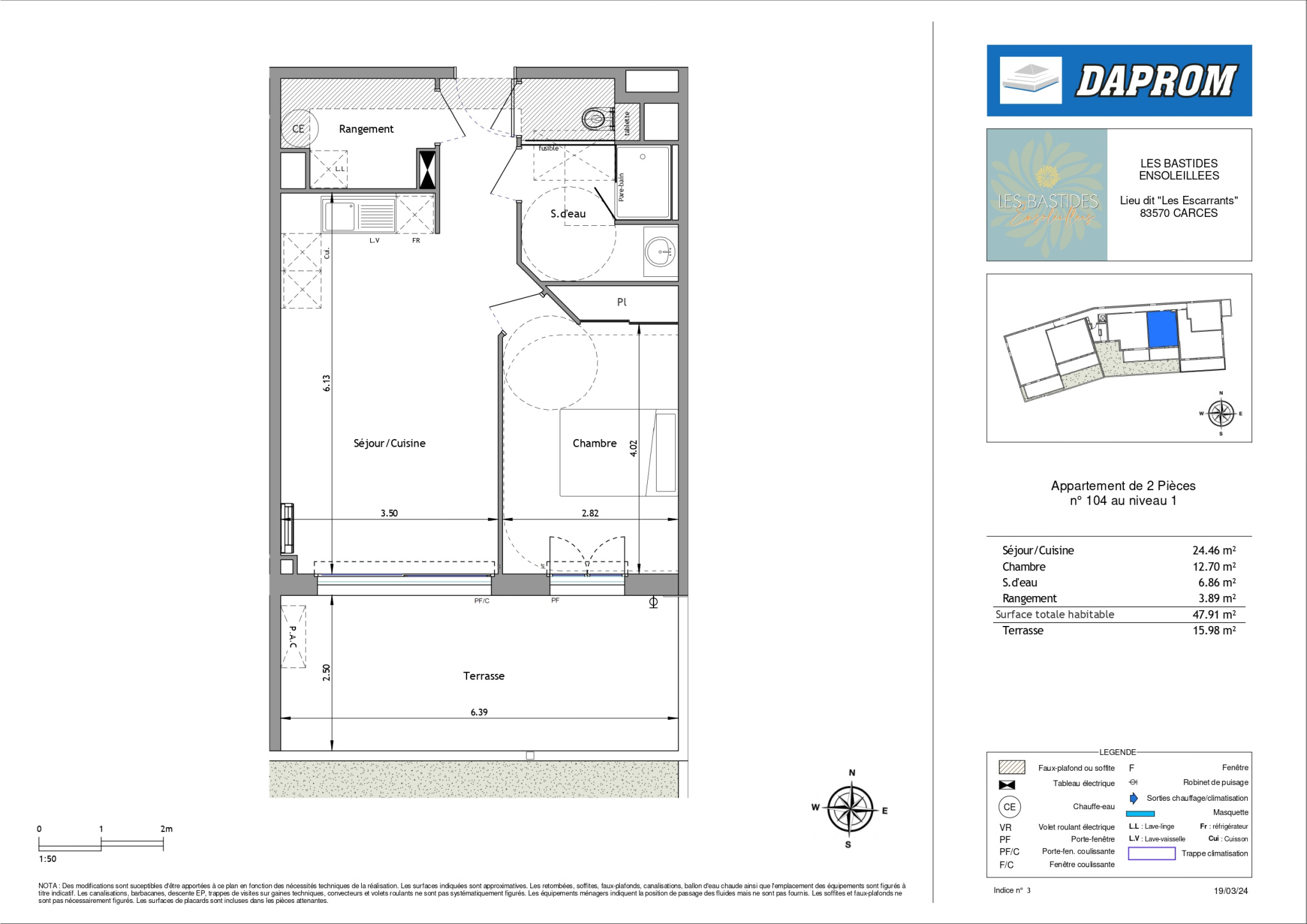
Découvrez ce superbe appartement neuf de deux pièces situé dans la résidence Les Bastide d'ensoleillée, au lieu-dit Les Esca à Carcès (83570). Ce bien, portant le numéro 104 au niveau un, offre une surface habitable de 47,91 m² comprenant un séjour cuisine lumineux de 24,46 m², une chambre confortable de 12,70 m², une salle d'eau moderne de 6,86 m² et un espace rangement de 3,89 m². Profitez d'une belle terrasse orientée plein sud de 15,98 m², idéale pour vos moments de détente. L'appartement est également accompagné d'un parking en sous-sol (n°12) de 13 m². Proposé à 233 000 €, ce bien est parfait pour un premier achat ou un investissement dans un cadre paisible et recherché.

Descriptif de ce bien
Général
Code postal 83570
Surface loi Carrez (m²) 47,91 m²
Nombre de chambre(s) 1
Nombre de pièces 2
Etage 1
Nombre de niveaux 1
Ascenseur OUI
Détails
Nb de salle d'eau 1
Cuisine Américaine
Visiophone OUI
Balcon NON
Loggia NON
Terrasse OUI
Cave NON
Exposition Sud
Année de construction 2026
Composition
Rez de chaussée
Séjour / Cuisine 24.46 m²

chambre 12.7 m²

Salle d'eau 6.86 m²

Rangement 3.89 m²

terrasse 15.98 m²

Sud

Financier
Prix de vente 233 000 €
Les honoraires d'agence seront intégralement à la charge du vendeur  
Energie
DPE GES
Copropriété
Copropriété OUI
Lot n° 104
nombre de lots 11
Contacter pour ce bien
L'agence
Téléphone 06 71 32 98 13
Adresse
25 grand Rue 83860 Nans-les-Pins

* Champ obligatoire

Les informations recueillies sur ce formulaire sont enregistrées dans un fichier informatisé par La Boite Immo agissant comme Sous-traitant du traitement pour la gestion de la clientèle/prospects de l'Agence / du Réseau qui reste Responsable du Traitement de vos Données personnelles. La base légale du traitement repose sur l'intérêt légitime de l'Agence / du Réseau. Elles sont conservées jusqu'à demande de suppression et sont destinées à l'Agence / au Réseau. Conformément à la loi « informatique et libertés », vous disposez des droits d’accès, de rectification, d’effacement, d’opposition, de limitation et de portabilité de vos données. Vous pouvez retirer votre consentement à tout moment en contactant directement l’Agence / Le Réseau. Consultez le site https://cnil.fr/fr pour plus d’informations sur vos droits. Si vous estimez, après avoir contacté l'Agence / le Réseau, que vos droits « Informatique et Libertés » ne sont pas respectés, vous pouvez adresser une réclamation à la CNIL. Nous vous informons de l’existence de la liste d'opposition au démarchage téléphonique « Bloctel », sur laquelle vous pouvez vous inscrire ici : https://www.bloctel.gouv.fr Dans le cadre de la protection des Données personnelles, nous vous invitons à ne pas inscrire de Données sensibles dans le champ de saisie libre.
Ce site est protégé par reCAPTCHA, les Politiques de Confidentialité et les Conditions d'Utilisation de Google s'appliquent.

Découvrir nos outils